반응형
익산 마동 자이 그랜드 파크 12. 10 오픈!(84 평면도 공개)
전북 익산시 마동 산 40번지 일원에 위치한 '익산 마동 자이 그랜드 파크' 아파트 단지 분양 예정이 2021년 12월 10일 입주자 모집 공고 및 사이버 모델하우스 견본 주택을 오픈할 예정입니다.
* 익산 마동 자이 그랜드파크 아파트 분양 및 청약 일정과 84타입 평면도를 첨부하였으니 참고하시기 바랍니다.
* 함께 보면 좋은 글 '익산 마동 자이 그랜드 파크' 바로가기

익산 마동 자이 그랜드 파크 분양 및 청약 일정
익산 마동 자이 그랜드 파크 아파트 분양 및 청약 일정입니다.
사업주체측 사정에 따라 분양 및 청약 일정이 변경될 수 있으니 참고하시기 바랍니다.
2021년 12월 10일(금요일) 익산 마동 자이 그랜드 파크 입주자 모집 공고 및 사이버 모델하우스 견본 주택을 오픈할 예정입니다.
아파트 특별공급 청약 접수는 2021년 12월 20일(월) 예정, 아파트 당첨자 및 동호수 발표는 2021년 12월 28일(화요일) 예정입니다.
아파트 일반공급 청약 1순위는 2021년 12월 21일(화요일) 예정이오니 참고하시기 바랍니다.!!!

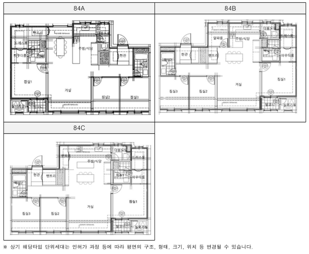
익산 마동 자이 그랜드 파크 분양 84타입 평면도
익산 마동 자이 그랜드 파크 84타입 평면도입니다.
인허가 과정 등에 따라 구조 및 면적 등이 변경될 수 있으니 참고하시기 바랍니다.
반응형